Projets Zac Ampère - Lot 14N
MASSY
Zac Ampère - Lot 14N
- Équiper
Construction d'une résidence étudiante de 255 logements et d'un commerce
Programmation
Résidence étudiante (255 logements)
Commerce
Montant travaux
14.1 M
Mission
Concours
Conception
Suivi architectural
Livré en 2019
Maître d’oeuvre
Ateliers 115 / KCAP
Maître d'ouvrage
Eiffage immobilier
Labels — BIM
NF Habitat HQE
RT 2012
BIM — Niveau 1
| Programmation | Résidence étudiante (255 logements) | Commerce | ||
| Montant travaux | 14.1 M | |||
| Mission | Concours | Conception | Suivi architectural | Livré en 2019 |
| Maître d’oeuvre | Ateliers 115 / KCAP | Maître d'ouvrage | Eiffage immobilier | |
| Labels — BIM | NF Habitat HQE | RT 2012 | BIM — Niveau 1 |

Inspirée par l’image d’un rocher en transformation, la résidence étudiante s’affirme comme un monolithe sculpté par le temps, ancré dans son site et subtilement travaillé par les forces de l’érosion. Ce parti architectural donne naissance à un bâtiment fort, expressif et évolutif.
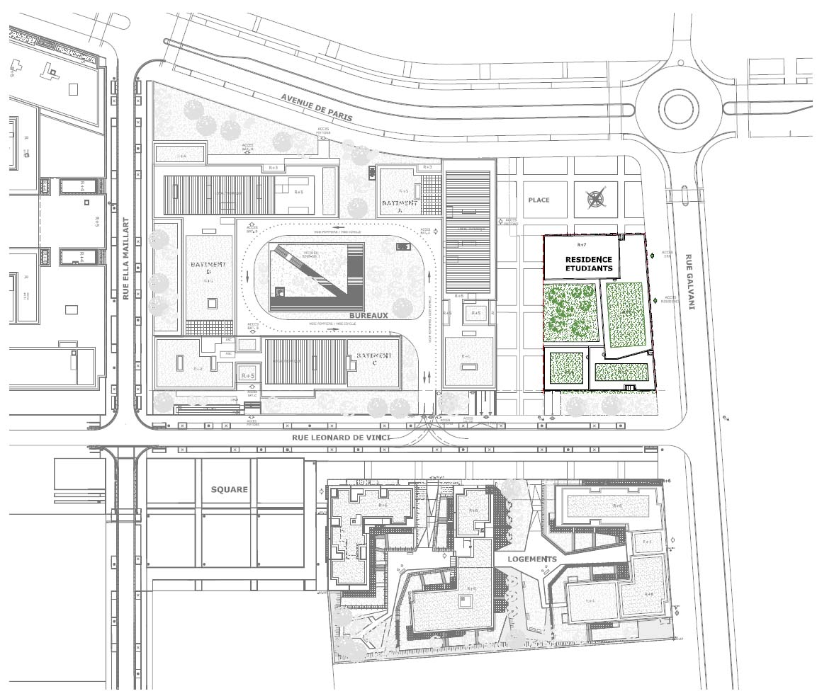
Implanté à la jonction d’un tissu mixte, entre habitat au sud et bureaux à l’ouest, l’édifice adopte une forme en U qui libère un cœur d’îlot végétalisé, intime et protégé. Aligné sur les voiries principales, ce volume creusé ménage un espace central propice au calme et aux échanges entre résidents.
Les failles vitrées, la matérialité minérale en béton blanc et les percées de lumière donnent rythme et profondeur à l’ensemble, tout en assurant ventilation naturelle, confort thermique et intégration urbaine.
Implanté à la jonction d’un tissu mixte, entre habitat au sud et bureaux à l’ouest, l’édifice adopte une forme en U qui libère un cœur d’îlot végétalisé, intime et protégé. Aligné sur les voiries principales, ce volume creusé ménage un espace central propice au calme et aux échanges entre résidents.
Les failles vitrées, la matérialité minérale en béton blanc et les percées de lumière donnent rythme et profondeur à l’ensemble, tout en assurant ventilation naturelle, confort thermique et intégration urbaine.


