Projets Zac des Tarterets
CORBEIL ESSONNE
Zac des Tarterets
- Habiter
Conception de 48 logements sociaux
Programmation
48 logements sociaux - 3 348 m² SDP
Montant travaux
15 M€
Mission
Concours
Conception
Pc obtenu
Exécution
Maître d'ouvrage
1001 VIES
Labels — BIM
RE 2025
NF Habitat HQE 6*
BIM — Niveau 3
| Programmation | 48 logements sociaux - 3 348 m² SDP | |||
| Montant travaux | 15 M€ | |||
| Mission | Concours | Conception | Pc obtenu | Exécution |
| Maître d'ouvrage | 1001 VIES | |||
| Labels — BIM | RE 2025 | NF Habitat HQE 6* | BIM — Niveau 3 |


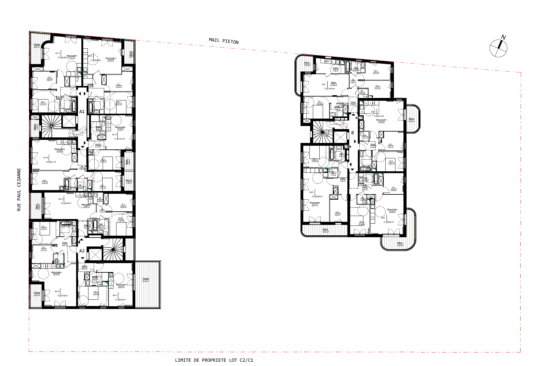
Situé au cœur d’un quartier en pleine transformation, le projet propose la réalisation de 49 logements sociaux répartis en deux bâtiments implantés sur une parcelle de 2 977 m². Inscrit dans une démarche de renouvellement urbain, il vise à offrir un cadre de vie qualitatif, en cohérence avec les enjeux contemporains d’habitabilité, de durabilité et d’intégration urbaine.

La conception s’appuie sur une implantation nord/sud optimisée, favorisant à la fois l’ensoleillement naturel et la ventilation passive des logements.
L’écriture architecturale s’organise en trois strates lisibles :
- un socle actif regroupant les halls, locaux vélos et logements en rez-de-chaussée,
- un corps de bâtiment rythmé par des loggias qui offrent de généreux espaces extérieurs privatifs,
- et une ligne de ciel fragmentée, animée par des terrasses qui allègent la silhouette du bâti.
Le choix de matériaux pérennes, tels que la brique claire et des composants biosourcés, contribue à la qualité thermique du projet tout en affirmant une esthétique sobre et durable, en harmonie avec le paysage urbain environnant.
L’écriture architecturale s’organise en trois strates lisibles :
- un socle actif regroupant les halls, locaux vélos et logements en rez-de-chaussée,
- un corps de bâtiment rythmé par des loggias qui offrent de généreux espaces extérieurs privatifs,
- et une ligne de ciel fragmentée, animée par des terrasses qui allègent la silhouette du bâti.
Le choix de matériaux pérennes, tels que la brique claire et des composants biosourcés, contribue à la qualité thermique du projet tout en affirmant une esthétique sobre et durable, en harmonie avec le paysage urbain environnant.
