Projets Zac du Centre ville
BUSSY-SAINT-GEORGES
Zac du Centre ville
- Habiter
Construction de 154 logements en accession et 70 logements sociaux
Programmation
154 logements accession
70 logements sociaux
Montant travaux
22.67 M
Mission
Concours
Conception
Suivi architectural
Chantier en cours
Maître d’ouvrage
Les Nouveaux Constructeurs
Labels — BIM
NF Habitat HQE
RT 2020
BIM — Niveau 1
| Programmation | 154 logements accession | 70 logements sociaux | ||
| Montant travaux | 22.67 M | |||
| Mission | Concours | Conception | Suivi architectural | Chantier en cours |
| Maître d’ouvrage | Les Nouveaux Constructeurs | |||
| Labels — BIM | NF Habitat HQE | RT 2020 | BIM — Niveau 1 |

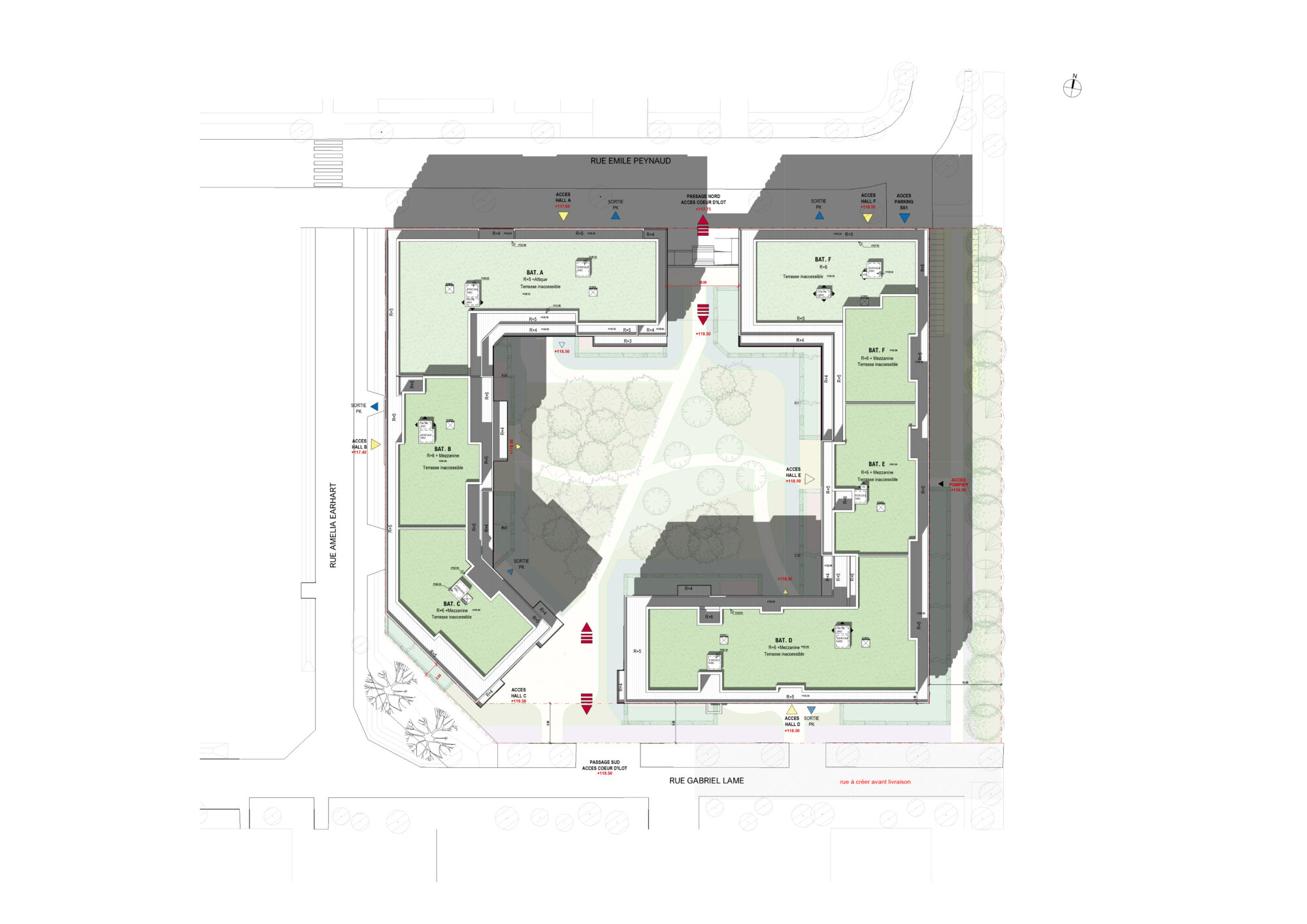
Implanté dans un secteur marqué par une trame urbaine historique et ordonnancée, le projet s’inscrit dans la continuité des îlots de Bussy-Saint-Georges, tout en affirmant une relation plus intime avec le paysage.
L’implantation du projet prolonge le tissu urbain environnant, tout en dégageant une "équerre verte" au Sud-Est, véritable cœur paysager du projet. Deux failles visuelles traversantes invitent le regard et le piéton à découvrir cet espace végétalisé.
L’architecture articule socle minéral sur deux niveaux en pierre naturelle, façades en enduits texturés tramés, garde-corps métalliques perforés, et attiques en pierre accueillant des duplex lumineux. Le projet valorise les espaces extérieurs généreux, les volumes en double hauteur, et privilégie la lumière naturelle via des halls traversants.
Une attention particulière est portée à l’éco-mobilité avec des locaux vélos ouverts et visibles, favorisant des usages durables et fluides au sein de l’îlot.
Ce projet incarne une vision contemporaine d’un urbanisme résidentiel structuré, perméable et vivant, à l’écoute de son territoire.
L’implantation du projet prolonge le tissu urbain environnant, tout en dégageant une "équerre verte" au Sud-Est, véritable cœur paysager du projet. Deux failles visuelles traversantes invitent le regard et le piéton à découvrir cet espace végétalisé.
L’architecture articule socle minéral sur deux niveaux en pierre naturelle, façades en enduits texturés tramés, garde-corps métalliques perforés, et attiques en pierre accueillant des duplex lumineux. Le projet valorise les espaces extérieurs généreux, les volumes en double hauteur, et privilégie la lumière naturelle via des halls traversants.
Une attention particulière est portée à l’éco-mobilité avec des locaux vélos ouverts et visibles, favorisant des usages durables et fluides au sein de l’îlot.
Ce projet incarne une vision contemporaine d’un urbanisme résidentiel structuré, perméable et vivant, à l’écoute de son territoire.

Une faille végétale vers le cœur d'ilot



Des locaux vélos traversant dans les halls